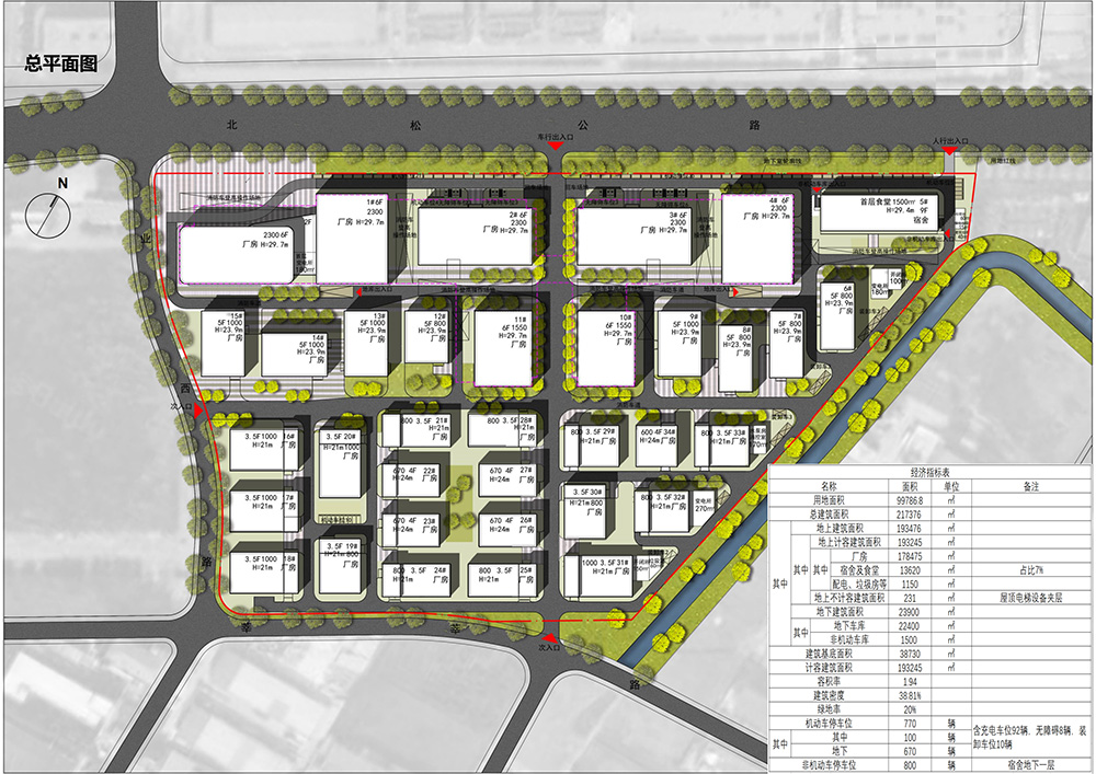
项目概况:北松公路5355号
【地积】占地150亩,一期建筑面积19万方
【户型】独栋 3.5F、4F / 分层产品 5F
【面积】800平米 至 3300平米
【独栋层高】7.2米/4.5米/4.5米/3.9米
【3.5F独栋承重】2T/800kg/500kg/350kg
【4F 独栋承重】2T/500kg/500kg/500kg/350kg
【5F 分层层高】6米/4.4米/4.4米/4.4米/3.9米
【5F 分层承重】2T/500kg/500kg/500kg/500kg/350kg
【配电】基础配电0.07KW/每平米,具备增容条件
【消防】丙类、消防栓、上下水
【土地年限】50年独立产权
【车位】共770个、地面100个、地下车库670个
【用途】实验、生产、研发、组装、办公
【产业导向】智能制造、精密机械、医疗器械、新材料、自动化设备、信息技术
【配套】U谷食堂、13000平员工宿舍
【交通】沈海高速出口1公里、22号线车墩站





