项目概况:华加路99号
【地积】占地182亩,一期建筑面积10万方
【户型】独栋 3.5F、独栋4F
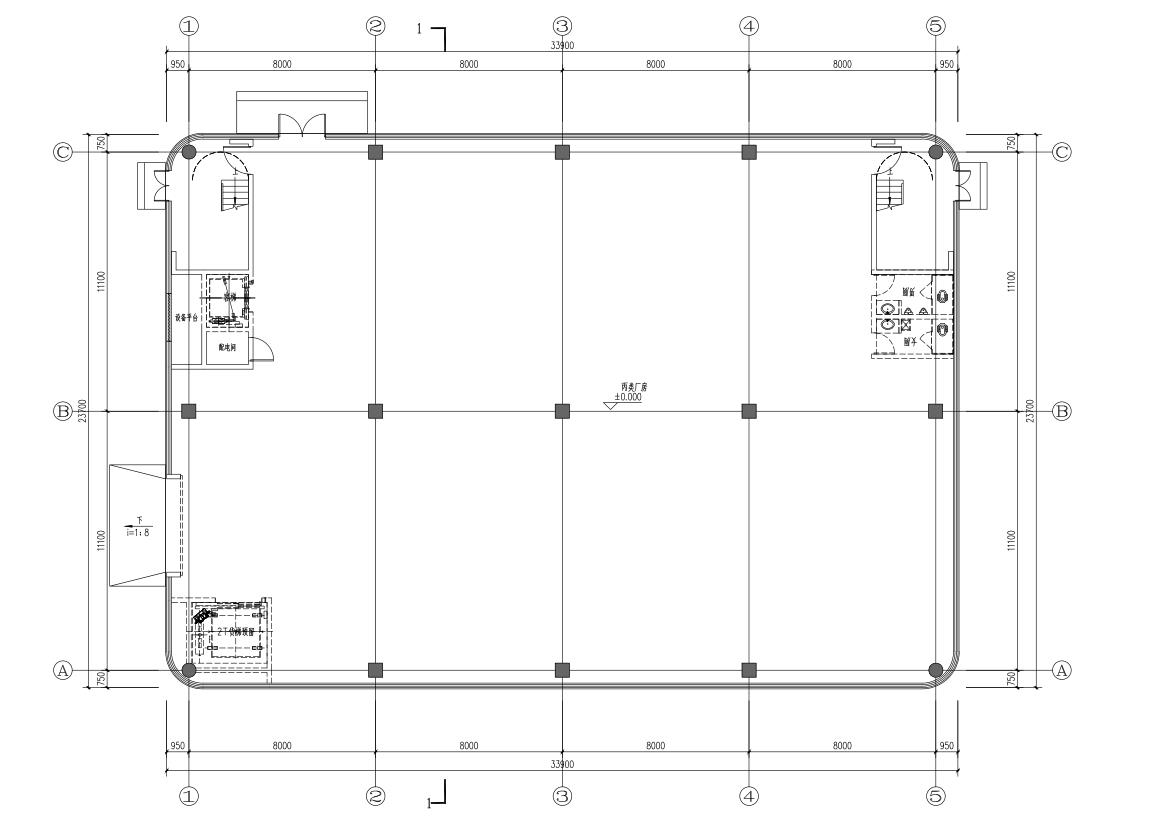
【面积】2800平米至4200平米
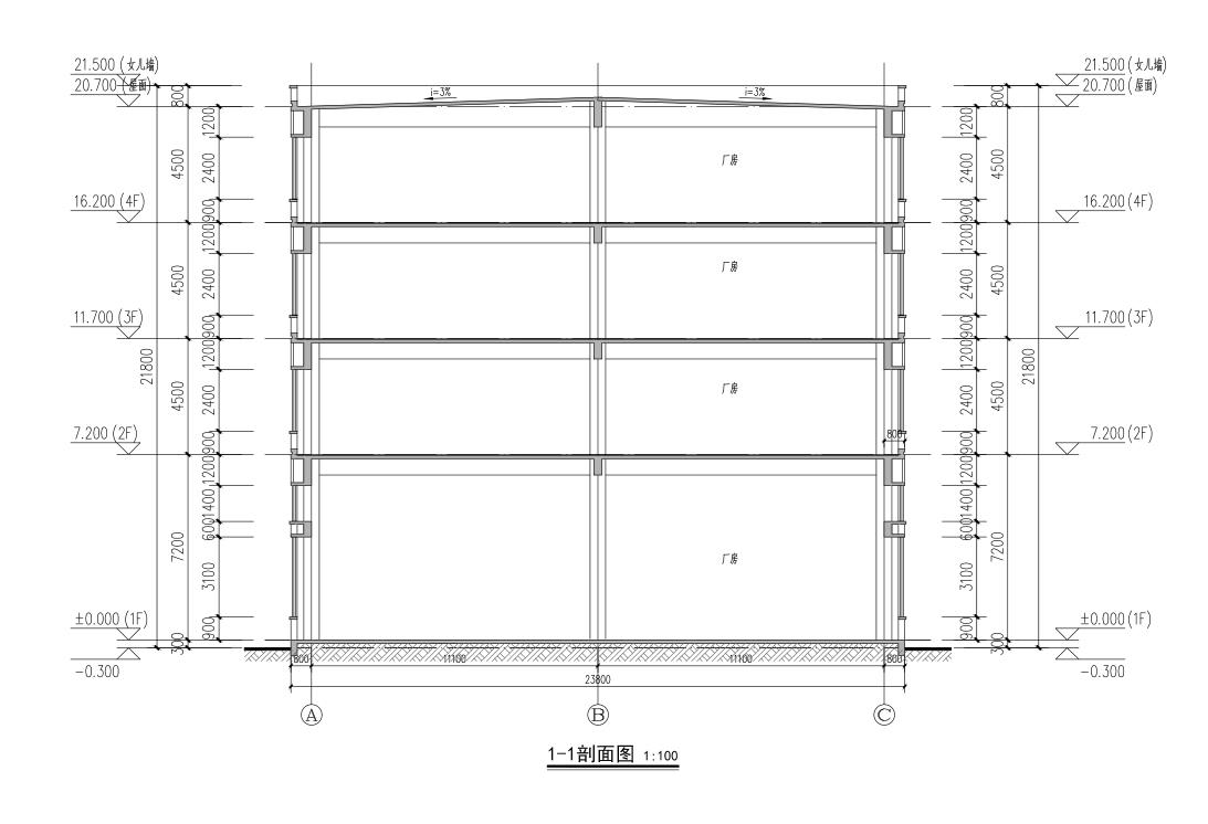
【3.5F层高】7.2米/4.5米/3.9米
【3.5F承重】2T/800kg/500kg
【4F层高】7.2米/4.5米/4.5米/4.5米
【4F承重】2T/800kg/500kg/500kg
【配电】基础配电0.07KW/每平米,具备增容条件[消防】丙类、消防栓、上下水
【土地年限】50年独立产权
【车位】共540个、电桩车位55
【用途】实验、生产、研发、组装、办公
【产业导向】智能制造、精密机械、医疗器械、新材料、自动化设备、信息技术
【配套】U谷食堂、欧尚商场
【[交通】沪昆高速出入口4公里、沈海高速出入口5公里、9号线体育中心站6公里、22号线车墩站7公里








3200平房型图纸

3200平刨面图
3200平轴立面